
閘閥知識
閥門首頁 > 閥門知識 > 閘閥知識 > 上海湖泉閥門集團有限公司PZ973H-10C電動刀型閘閥是一種采用多回轉電動裝置驅動的閥門,主要用于驅動和控制閥門的開啟和關閉。其操作人...
電動刀閘閥的明桿和暗桿可以通過以下幾種方式進行區分: 閥桿的位置: 明桿刀閘閥:閥桿螺母設計在閥蓋或支架上,閥桿外露,可以直...
礦用電動閘閥在礦業生產中起著至關重要的作用,其質量的好壞直接影響到生產效率和安全性。通過觀看礦用電動閘閥的圖片及價格視頻,...
電動閘閥Z941H-25 DN200是一種用于高溫高壓蒸汽的電動閘閥,具有多種特性和應用場景。 產品特性 密封可靠性:電動閘閥采用壓力自緊式密封...
Z941H電動閘閥是一種廣泛應用于多個領域的閥門設備,主要適用于石油、化工、水利、建筑、消防、電力、環保等場合。其產品特點和技術...
Z941電動閘閥是一種廣泛應用于石油、化工、制藥和電力等行業的閥門,主要用于蒸氣、水、油品等介質的管路上進行啟閉操作。以下是關于...
手動刀閘閥門改電動閥產品介紹主要包括以下幾個方面: 定義和功能 手動刀閘閥門改電動閥是通過將手動刀閘閥門的操作機構替換為電動...
污水專用電動刀型閘閥是一種專門設計用于污水處理系統的閥門,具有多種特性和應用場景。以下是關于污水專用電動刀型閘閥的詳細介紹...
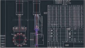
大口徑電動刀閘閥是一種通過電動裝置驅動的閥門,主要用于遠程控制閥門的開啟和關閉。其結構包括左、右閥體、密封面、閘板、鋼螺母...
電動刀閘閥,也稱為電動刀型閘閥,是一種重要的流體控制設備。其結構相對簡單,主要包括閥體、閘板、閥桿、密封件和執行機構(電動...